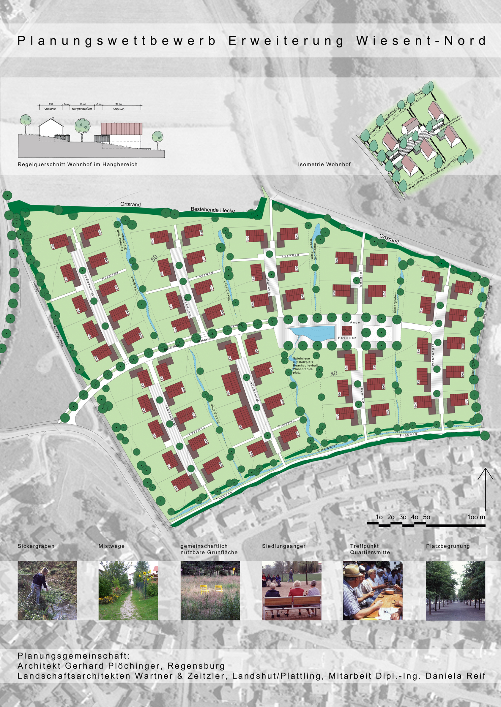
Ortserweiterung Wiesent Nord |
| Gemeinde/Stadt Wiesent, Landkreis Regensburg |
| Auftraggeber Gemeinde Wiesent |
| Partner Helmut Wartner, Landschaftsarchitekten, Landshut |
Berliner Platz Bad Kissingen |
| Gemeinde/Stadt Stadt Bad Kissingen, Landkreis Bad Kissingen |
| Auftraggeber Stadt Bad Kissingen |
| Partner Helmut Wartner, Landschaftsarchitekten, Landshut |
Ortszentrum Barbing |
| Gemeinde/Stadt Stadt Bad Kissingen, Landkreis Bad Kissingen |
| Auftraggeber Stadt Bad Kissingen |
| Partner Helmut Wartner, Landschaftsarchitekten, Landshut |
Dorfgemeinschaftshaus Hiltersried |
| Gemeinde/Stadt Schönthal, Landkreis Cham |
| Auftraggeber Gemeinde Schönthal |
| Partner Hans Haslsteiner, Architekt, Bad Kötzting |












